Stordamringen

Tomt 29

Tomten er kun fjell og litt skogsbunn med trær. Tomten leveres med fiber, vei, vann og avløp til tomtegrense. Kjøper er selv ansvarlig for opparbeidelse av tomten og alle tilkoblingsavgifter til Ullensaker kommune. i forbindelse med bygging må det påregnes sprengningsarbeider.

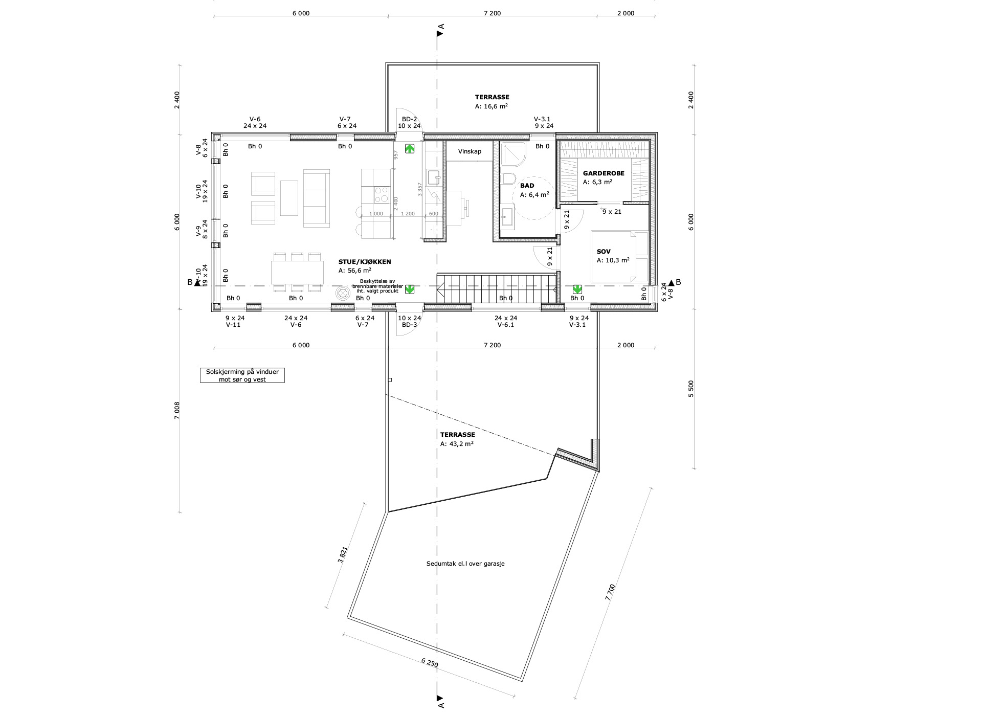
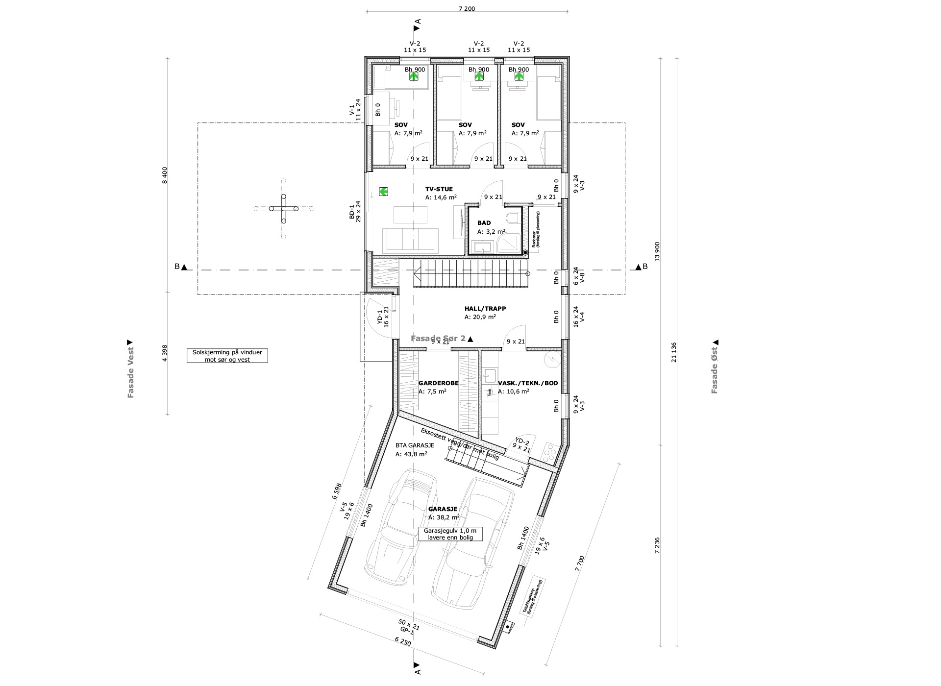
Det er ingen byggeklausul for Norgeshus men vi kan bistå med hjelp fra Norgeshus sine dyktige arkitekter. Det er laget en skisse som viser mulighet tomten har for en spesiell bolig, denne boligen er ikke kostnadsberegnet. Fasadetegninger og plantegning av skissert bolig
kan sees i bildevisningen under.

Byggeklausul med Norgeshus 3 Bygg Mester.

Dokumentavgift til staten, 2,5%,
Tinglysningsgebyr for skjøte kr 500,-
Tinglysningsgebyr og attestgebyr for hvert pantedokument kr 500,-
Tinglysningsgebyr for pantattest kr 206,-
Startkapital til Vel kr 6 000.-
Miljøavgift kr 9 500,-
Tilknyttingsavgift til kommune er ikke inkludert i tomtepris.
Vann, Avløp, Strøm og fiber er lagt til tomtegrense.
Vi tar forbehold om mulig endringer at offentlige gebyrer/avgift.
NB! *Tomtene er ikke oppmålt så mindre variasjon kan forekomme.

1

/ 8

  • Tomteareal 917 m2
  • Pris 3.550.000
  • Tomtepris 3.550.000
  • BRA-i 1 m2
  • Totale omkostninger kr 80 496,-
  • BYA 275 m2

Kontakt oss! Vi svarer deg på alle spørsmål om tomtene og boligene.

Ann Kristin Hoset

Aktiv - Eiendomsmegler MNEF

98 08 56 92